一、前言
輕質混凝土與常重混凝土材料組成之最大區別主要在於填充粒料之差異。輕質混凝土採輕質粒料為其填充材料,具質輕、防火性佳、隔熱性優、隔音及吸音性佳,強度亦可符工程需求等優點,適合使用於房屋建築構材,世界各先進國家應用為營建材料已有多年。
輕質粒料大致可分成天然及人造兩種。天然粒料以火山岩居多,但產量有限,品質穩定性較差;人造輕質粒料則主要利用天然材料如膨脹頁岩、膨脹黏土等燒製而成,早在1917年美國首先使用旋窯燒製膨脹性黏土及頁岩輕質粒料,於1950年代,進而普遍使用輕質粒料拌製成輕質混凝土使用於房屋框架、橋面板及預鑄構件等,近年來各先進國家更已運用於大型鑽油平台與長跨距橋梁,以解決常重混凝土自重大之缺點。
國內為將此先進材料推廣應用於主結構物,特於國道6號石灼巷跨越橋採預力輕質混凝土設計,此為國內首次將輕質混凝土應用於橋梁結構,可替代國內日漸枯竭之砂石料,並期推動輕質混凝土廣泛應用於國內工程。
二、設計說明
1.結構概述
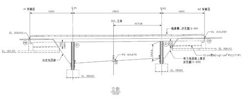
本橋位於草屯鎮雙冬里石灼巷,約於國道6號南投段STA.14K+088處跨越主線,本橋係採三跨連續預力中空版梁設計,橋面淨寬10.1m,跨徑配置採14-29-14m三跨連續,全長57m,橋墩與上構採剛接,上構採連續預力中空版梁配合輕質骨材混凝土施工,梁深約為1m,橋梁立面如圖1所示,其橫斷面詳如圖2,下構則仍為常重混凝土,墩柱斷面為400cm×100cm之近似橢圓形,其斷面如圖3所示,本橋因上構之載重減輕,故基礎採獨立基腳設計。
![]() |
|
| ▲ | 圖1 石灼巷跨越橋立面 |
|
||||||||
|---|---|---|---|---|---|---|---|---|
2.設計條件
本橋結構設計條件如下:
(1)依據交通部公路橋梁設計規範及公路橋梁耐震設計規範考慮自重、活重、風力、摩擦力、乾縮潛變、溫度、溫度梯度、沉陷及地震力等載重組合。
(2)活載重依據該路段交通特性及交通部90年「公路橋梁設計規範」採HS20-44設計。
(3)上構輕質混凝土單位重γc=1.8T/m3,下構橋墩為常重混凝土,γc=2.4T/m3,混凝土28天抗壓強度上下構均採fc'=350kgf/c㎡,鋼筋之降伏強度fy=4200kgf/c㎡,預力鋼腱採用應力消除無被覆式7線鋼絞索,其極限拉力強度fs=19100kgf/c㎡。
(4)輕質混凝土楊氏係數依Pauw氏建議之經驗公式 Ec=4000
,經計算為161,639kgf/c㎡。
(5)輕質混凝土構材所相應之乾縮潛變量,經文獻研究與常重混凝土差距不大,故本橋之計算採常重混凝土方式辦理 。
(6)為考量耐久性,避免底板開裂,大梁不得產生張應力。
3.分析結果
本橋採業界通用之有限元素套裝軟體分析,大梁採用14股19T-12.7mmΦ預力鋼絞索,經分析結果大梁於各種載重組合下無張應力,最大壓應力約為101kgf/c㎡,橋墩之鋼筋比約為2%。主跨中點之垂直變位量為2.5cm,符合設計規範之規定,其與常重混凝土分析結果之比較如表1所示。
項目 |
上構輕質下構常重 | 上下構均常重 |
|---|---|---|
上部結構斷面 |
相同(梁深1m) |
相同(梁深1m) |
墩柱斷面及尺寸(長×寬×高) |
400×100×800 |
400×120×800 |
預力鋼腱用量(19T-12.7mmΦ)
|
14股 |
16股 |
最大張應力 |
- |
-13kgf/c㎡ |
最大壓應力 |
101kgf/c㎡ |
135kgf/c㎡ |
主跨中點活載重垂直變位 |
2.5cm (L/1160) |
1.3cm (L/2230) |
墩柱鋼筋比 |
約2% |
約2% |
成本比較(不含監測經費) |
約1.03 CAP |
1.00 CAP |
▲表1 分析結果比較表 |
||
三、材料性質與試驗
組成輕質混凝土之材料,部分與一般常重混凝土相同,部分則有明顯差異,但共同點為所有使用之材料均須符合規範之基本品質要求。此外,各種材料亦應具備相當之穩定性,以降低產製及施作過程中產生之變異,提高輕質混凝土之成品品質。
1.細粒料
輕質混凝土種類,依使用粒料之不同可區分為兩種,其一為全輕質粒料混凝土,亦即混凝土中所用之粒料均為輕質粒料。其二為常重砂-輕質粒料混凝土,其混凝土中所用之細粒料,與常重混凝土所用之一般砂相同。本工程輕質混凝土係採後者,其細粒料應採用符合第03053章規定之天然砂。
2.粗粒料
輕質粗粒料為構成輕質混凝土主要成份。輕質粒料大致可分為天然及人造輕質粒料兩大類,天然輕質粒料有浮石、泡沫火山岩等;人造輕質粒料主要有燒結水庫淤泥、膨脹頁岩、膨脹黏土、膨脹珍珠岩等。近年來國內學者與業界,在人造輕質粒料之研究,尤其是水庫淤泥燒結方面,具有豐碩之成果。本工程在輕質混凝土施作前材料準備階段,承包商原擬採用國內燒結之人造輕質粗粒料,惟因輕質混凝土配比試拌及澆置工作時程已排定,而承包商之協力拌和廠洽詢國內燒結輕質粒料廠商仍在試燒階段,無法明確承諾如期供應,因此轉而向國外洽購。另外,向國外採購另一因素為本工程契約條款規定輕質粒料依CNS 490測得之磨損率應符合常重混凝土所用粗粒料之規定,即試驗結果須在40%以下;此為輕質混凝土在國內應用時罕見之規定,拌和廠衡量在無充分把握情形下,進而轉向國外洽購。
輕質粗粒料在進入拌和廠後,須進行相關之材質試驗,除了CNS 3691要求之檢驗項目外,規範另針對輕質粒料之比重、吸水率、硫酸鈉健度等作相關規定。表2為輕質粒料主要試驗要求與試驗結果。其中乾比重達1.41,較規範要求及預期稍大,雖然根據相關研究指出,輕質粒料之比重與粒料單顆粒抗壓強度及筒壓強度成正相關之關係,混凝土中輕質粒料比重較大,其對應之混凝土抗壓強度亦較高。然而,對於本工程規定最大氣乾單位重1900kg/m3而言,較大比重之輕質粗粒料,卻也在配比設計作業過程中,造成粒料調整空間受到相當之限制。
試驗項目 |
試驗結果 | 規範要求 |
|---|---|---|
比重(乾燥) |
1.41 |
≧1.2 |
24小時吸水率(%) |
11.5 |
≦13 |
洛杉磯磨損率(%) |
33.13 |
≦40 |
五循環之硫酸鈉健度損失(%)試驗損 |
0.74 |
≦9 |
筒壓強度(Mpa) |
7.5 |
>4 |
乾鬆單位重(kg/m3) |
843.5 |
<880 |
▲表2 輕質粗粒料規範要求與試驗結果 |
||
3.水泥及爐石粉
水泥符合CNS 61 TYPE I之規定。爐石粉則符合CNS 12549活性指數120級,且細度達5000c㎡/g之規定。
![]() |
|
| ▲ | 圖4 試體沿輕質粒料破壞(5天齡期) |
4.矽灰
與一般使用天然粒料之常重混凝土不同,輕質粒料混凝土承受外力後之傳力主體為砂漿,藉由混凝土抗壓試體破壞面之觀察(如圖4),可獲得印證。因此本工程在規範上特別要求,於輕質混凝土中應添加膠結材總量4%以上之矽灰,其目的在於強化整體砂漿之強度及增加新拌混凝土之稠度,以降低輕質粒料於澆置過程產生粒料上浮現象。
矽灰材質之要求,須符合ASTM C1240-00之規定,其中比表面積須達15㎡/g以上,因細度過高無法以氣透儀辦理試驗,而須依ASTM C1069-00測試方法,以氮吸附方式試驗。